Павловск, ул Александра Матросова, д. 44 литера А
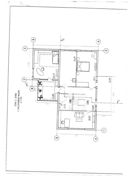
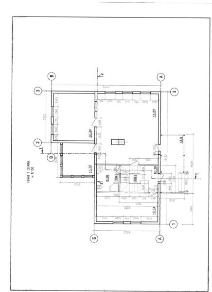
Павловск, территория Пязелево ул. Александра Матросова № 44 литера А), участок 12,99 сот. (Земли населенных пунктов / Индивидуальное жилищное строительство). Дом: этажность - 2. Реконструкция дома в 2021, высота потолков первый этаж - 3 м., второй этаж - 2,7 м. Фундамент ленточный. Дом расположен правильно, солнце весь день присутствует в доме. Материал наружных стен - рубленные. Коммуникации - электричество 15 квт, центральное газоснабжение, центральный водопровод, септик. Отопление котел газовый, радиаторы, теплый пол, гвс - колонка. 9 комнат, два санузла, три террасы. Пол доска массив, стены под чистовую отделку. Материалы для отделки в наличии. Отделка фасада на любой вкус, маяки выставлены. В самые холодные месяцы стоимость коммунальных платежей не превышает 35руб/м2. На участке сруб бани, гараж. Участок сухой, ровный.Подъезд к участку - асфальт, остановка общественного транспорта - 60.м. В 10- минутной доступности конный клуб, водоем, парки. Один взрослый собственник. Торг уместен.
Тип предложения Продам
География Павловск, Воронежская область, Павловский район
Адрес
ул Александра Матросова, д. 44 литера А
Вид участка
Земли поселений (ИЖС, ЛПХ)
Площадь участка
12,99 соток
Дополнительно
возможность ПМЖ
29 000 000 ₽
Добавить в избранное
Удалить из избранного
Добавить к сравнению
Удалить из сравнения